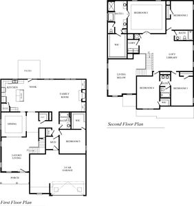
WESTERLY Plan, Hamptons at RiverwoodDallasGA30157







Nearby investment properties with comparable rents
Nearby investment properties with comparable prices

Ziffy AI Summary
A quick, investor-focused snapshot highlighting income strength, yield potential.
| Key metrics | Value |
|---|---|
| Price | $399,900 |
| Est. Rent | $3,200/mo |
| ROI | 18% |
- Attractive rent-to-price ratio for income stability
- Good fit for DSCR financing with healthy coverage


Investment Highlights
Investment property for sale in Dallas at WESTERLY Plan, Hamptons at Riverwood, Dallas, GA, 30157 with 5% annual appreciation on a $544,990 basis while $2,743/mo rent supports operations. 22% in year one. Equity gained on principal adds $3,517/yr, and five-year appreciation sums $150,571 alongside rental yield of 6.04%. Five-year ROI measures 82.91% and total cumulative return in cash totals $148,653. Investors can finance this property with Ziffy Mortgage’s DSCR loan that underwrites to $2,743/mo property income versus a $2,667/mo payment rather than your W2s, Paystubs, Tax returns, or 1099 forms.
Single Family
Built in 2025
N/A lot
$N/A/sqft
No HOA
Neighborhood Data
Neighborhood data shown for ZIP Code: 30157, Dallas, GA area.
Housing Distribution
Housing Statistics
| Category | Value |
|---|---|
| Total HU (Housing Units) | 20,008 (100%) |
| Owner Occupied HU | 15,794 (78.9%) |
| Renter Occupied HU | 3,582 (17.9%) |
| Vacant Housing Units | 632 ( 3.2%) |
| Median Home Value | $317,081 |
| Average Home Value | $329,336 |
Housing Distribution
Address Breakdown
Residential
19,876
Single Family
19,270
Multi-Family
606
Businesses
473
Nearby investment properties with comparable rents
Nearby investment properties with comparable prices












