88 Lady Ashley StMatthewsSC29135








Nearby investment properties with comparable rents
No similar rental properties found nearby.
Nearby investment properties with comparable prices

Ziffy AI Summary
A quick, investor-focused snapshot highlighting income strength, yield potential.
| Key metrics | Value |
|---|---|
| Price | $399,900 |
| Est. Rent | $3,200/mo |
| ROI | 18% |
- Attractive rent-to-price ratio for income stability
- Good fit for DSCR financing with healthy coverage


Investment Highlights
Rental property for sale in Matthews at 88 Lady Ashley St, Matthews, SC, 29135 offers $0/mo rent that, after a $783/mo payment. Total monthly income is $0/mo. Return on cash invested measures -1.65% in year one, and rental yield stands at 0% at a $159,900 entry. Equity gained on principal adds $1,032/yr while 5% annual appreciation compounds into $44,177 by year five. Lending can use Ziffy Mortgage’s DSCR loan, which structures approval around $0/mo property income versus a $783/mo payment rather than borrower’s personal income verification through W2s, Salary slips, and Tax returns.
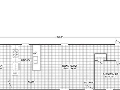
Manufactured
Built in 2025
1 Acres lot
$N/A/sqft
No HOA
Neighborhood Data
Neighborhood data shown for ZIP Code: 29135, Saint Matthews, SC area.
Housing Distribution
Housing Statistics
| Category | Value |
|---|---|
| Total HU (Housing Units) | 3,912 (100%) |
| Owner Occupied HU | 2,672 (68.3%) |
| Renter Occupied HU | 723 (18.5%) |
| Vacant Housing Units | 517 (13.2%) |
| Median Home Value | $152,329 |
| Average Home Value | $239,068 |
Housing Distribution
Address Breakdown
Residential
3,934
Single Family
3,894
Multi-Family
40
Businesses
287
Nearby investment properties with comparable rents
No similar rental properties found nearby.
Nearby investment properties with comparable prices



Listed by: Rachel Shealey Coward • Century 21 803 Realty
Mls Name: Consolidated MLS
Mls ID: #620374




