87 Colby StColebrookNH03576








Nearby investment properties with comparable rents
Nearby investment properties with comparable prices

Ziffy AI Summary
A quick, investor-focused snapshot highlighting income strength, yield potential.
| Key metrics | Value |
|---|---|
| Price | $399,900 |
| Est. Rent | $3,200/mo |
| ROI | 18% |
- Attractive rent-to-price ratio for income stability
- Good fit for DSCR financing with healthy coverage


Investment Highlights
Investment property for sale in Colebrook at 87 Colby St, Colebrook, NH, 03576 listed at $264,900 pairs $2,512/mo rent with a $1,297/mo payment to leave $736/mo cash flow. Total monthly income runs $2,512/mo, and annual cash flow reaches $8,832/yr on $87,814 cash to close. Return on cash invested measures 29.97% in year one, and rental yield registers 11.38% at a $264,900 basis. Equity gained on principal adds $1,709/yr, and annual property appreciation at 5% supports $73,187 by year five. Five-year ROI tracks 157.45% and total cumulative return in cash totals $138,260. Financing can be arranged with Ziffy Mortgage’s DSCR loan, which qualifies using $2,512/mo property income relative to a $1,297/mo payment rather than your personal income (W2, Tax Returns, Paystubs, or 1099).
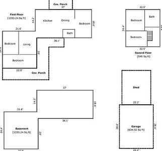
Single Family
Built in 1860
0.61 Acres lot
$N/A/sqft
No HOA
Neighborhood Data
Neighborhood data shown for ZIP Code: 03576, Colebrook, NH area.
Housing Distribution
Housing Statistics
| Category | Value |
|---|---|
| Total HU (Housing Units) | 2,488 (100%) |
| Owner Occupied HU | 1,122 (45.1%) |
| Renter Occupied HU | 420 (16.9%) |
| Vacant Housing Units | 946 (38.0%) |
| Median Home Value | $260,976 |
| Average Home Value | $314,418 |
Housing Distribution
Address Breakdown
Residential
1,502
Single Family
1,425
Multi-Family
77
Businesses
193
Nearby investment properties with comparable rents
Nearby investment properties with comparable prices



Listed by: N/A • N/A
Mls Name: undefined
Mls ID: #N/A








