617 Falling Leaf LnChapinSC29036



INVESTMENT ANALYSIS
Investment Verdict
Solid Income617 Falling Leaf Ln, Chapin, SC, 29036 in Chapin is a solid income-producing rental, 9.3% gross yield, $3,268/mo rent, $708/mo net cash flow on a $421,417 buy. DSCR 1.72 qualifies the property for Ziffy Mortgage's financing without personal income documentation. Five-year appreciation of $116,430 and $3,881/yr in principal reduction project a total cumulative return of $205,150.
| This Property | National Avg | |
|---|---|---|
| Gross Rental Yield | 9.3% | 6.2% |
| Monthly Cash Flow | $708 | $180 |
National averages based on 2024–2025 U.S. residential rental market data. Content is user-generated and unverified.
DSCR Rental Loan Qualification
Qualifies using the property's rental income, not your personal income.
- ✓No W-2, pay stubs, or tax returns needed
- ✓Rental income qualifies you
- ✓Built for real estate investors
| Monthly Rental Income | $3,268 |
| Total Monthly Debt Service | $2,392 |
| DSCR Ratio | 1.37x |
Ziffy Mortgage: Your DSCR most likely meets our 1.0+ requirement, so you'll most probably qualify for our standard DSCR investment loan program. To pre-qualify, book time with your loan officer →
Estimates assume 6.0% rate / 30-yr fixed, 30% down, 1% tax, 0.5% insurance. Not a commitment to lend.
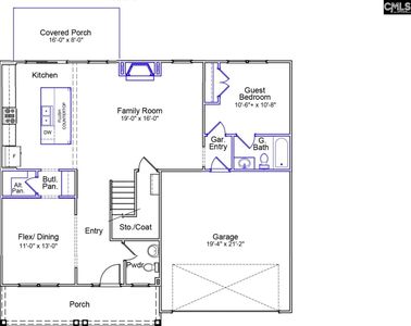
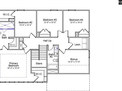
Single Family
Built in 2026
7,840 sqft lot
$N/A/sqft
$615 annually HOA
Neighborhood Data
Neighborhood data shown for ZIP Code: 29036, Chapin, SC area.
Housing Distribution
Housing Statistics
| Category | Value |
|---|---|
| Total HU (Housing Units) | 11,964 (100%) |
| Owner Occupied HU | 10,059 (84.1%) |
| Renter Occupied HU | 883 ( 7.4%) |
| Vacant Housing Units | 1,022 ( 8.5%) |
| Median Home Value | $415,767 |
| Average Home Value | $516,920 |
Housing Distribution
Address Breakdown
Residential
12,113
Single Family
11,956
Multi-Family
157
Businesses
548



Nearby investment properties with comparable rents
Nearby investment properties with comparable prices

Ziffy AI Summary
A quick, investor-focused snapshot highlighting income strength, yield potential.
| Key metrics | Value |
|---|---|
| Price | $399,900 |
| Est. Rent | $3,200/mo |
| ROI | 18% |
- Attractive rent-to-price ratio for income stability
- Good fit for DSCR financing with healthy coverage


Single Family
Built in 2026
7,840 sqft lot
$N/A/sqft
$615 annually HOA
Neighborhood Data
Neighborhood data shown for ZIP Code: 29036, Chapin, SC area.
Housing Distribution
Housing Statistics
| Category | Value |
|---|---|
| Total HU (Housing Units) | 11,964 (100%) |
| Owner Occupied HU | 10,059 (84.1%) |
| Renter Occupied HU | 883 ( 7.4%) |
| Vacant Housing Units | 1,022 ( 8.5%) |
| Median Home Value | $415,767 |
| Average Home Value | $516,920 |
Housing Distribution
Address Breakdown
Residential
12,113
Single Family
11,956
Multi-Family
157
Businesses
548
Nearby investment properties with comparable rents
Nearby investment properties with comparable prices



Listed by: Charles Lawrence • Clayton Properties Group Inc
Mls Name: Consolidated MLS
Mls Provider:
Mls ID: #630802
Disclaimer: IDX listing data provided courtesy of Consolidated MLS - Columbia, SC








