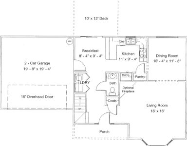
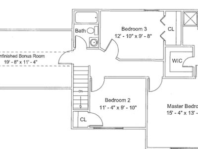
304 Musgrave CtPiedmontSC29673



INVESTMENT ANALYSIS
Investment Verdict
Solid IncomeNot flashy, but dependably profitable, 304 Musgrave Ct, Piedmont, SC, 29673 in Piedmont is listed at $289,900 and delivers $2,333/mo in rent and $607/mo in net monthly cash flow. The 9.66% yield and 1.79 DSCR provide the underwriting comfort Ziffy Mortgage needs to approve a DSCR loan without W-2 or tax-return documentation. Projected 5% annual appreciation adds $80,094 over five years, and $2,670/yr in principal reduction supplements cash return. Total projected cumulative return: $148,728.
| This Property | National Avg | |
|---|---|---|
| Gross Rental Yield | 9.7% | 6.2% |
| Monthly Cash Flow | $607 | $180 |
National averages based on 2024–2025 U.S. residential rental market data. Content is user-generated and unverified.
DSCR Loan Qualification
| Monthly Rental Income | $2,333 |
| Total Monthly Debt Service | $1,610 |
| DSCR Ratio | 1.45x |
Ziffy Mortgage: Your DSCR most likely meets our 1.0+ requirement, so you'll most probably qualify for our standard DSCR investment loan program. To pre-qualify, book time with your loan officer →
Estimates assume 6.0% rate / 30-yr fixed, 30% down, 1% tax, 0.5% insurance. Not a commitment to lend.
Single Family
Built in 2026
N/A lot
$N/A/sqft
No HOA
Neighborhood Data
Neighborhood data shown for ZIP Code: 29673, Piedmont, SC area.
Housing Distribution
Housing Statistics
| Category | Value |
|---|---|
| Total HU (Housing Units) | 13,431 (100%) |
| Owner Occupied HU | 9,512 (70.8%) |
| Renter Occupied HU | 3,101 (23.1%) |
| Vacant Housing Units | 818 ( 6.1%) |
| Median Home Value | $277,568 |
| Average Home Value | $332,050 |
Housing Distribution
Address Breakdown
Residential
13,462
Single Family
12,786
Multi-Family
676
Businesses
994



Nearby investment properties with comparable rents
Nearby investment properties with comparable prices

Ziffy AI Summary
A quick, investor-focused snapshot highlighting income strength, yield potential.
| Key metrics | Value |
|---|---|
| Price | $399,900 |
| Est. Rent | $3,200/mo |
| ROI | 18% |
- Attractive rent-to-price ratio for income stability
- Good fit for DSCR financing with healthy coverage


Single Family
Built in 2026
N/A lot
$N/A/sqft
No HOA
Neighborhood Data
Neighborhood data shown for ZIP Code: 29673, Piedmont, SC area.
Housing Distribution
Housing Statistics
| Category | Value |
|---|---|
| Total HU (Housing Units) | 13,431 (100%) |
| Owner Occupied HU | 9,512 (70.8%) |
| Renter Occupied HU | 3,101 (23.1%) |
| Vacant Housing Units | 818 ( 6.1%) |
| Median Home Value | $277,568 |
| Average Home Value | $332,050 |
Housing Distribution
Address Breakdown
Residential
13,462
Single Family
12,786
Multi-Family
676
Businesses
994
Nearby investment properties with comparable rents
Nearby investment properties with comparable prices



Listed by: N/A • D.R. Horton
Mls Name: DR Horton
Mls Provider:
Mls ID: #N/A








