209 Meadowbark Bnd #20GarnerNC27529








Nearby investment properties with comparable rents
Nearby investment properties with comparable prices

Ziffy AI Summary
A quick, investor-focused snapshot highlighting income strength, yield potential.
| Key metrics | Value |
|---|---|
| Price | $399,900 |
| Est. Rent | $3,200/mo |
| ROI | 18% |
- Attractive rent-to-price ratio for income stability
- Good fit for DSCR financing with healthy coverage


Investment Highlights
Investment property for sale in Garner at 209 Meadowbark Bnd #20, Garner, NC, 27529 listed at $417,162 pairs $2,388/mo rent with a $2,042/mo payment. Total monthly income runs $2,388/mo. Return on cash invested measures 17.92% in year one, and rental yield registers 6.87% at a $417,162 basis. Equity gained on principal adds $2,692/yr, and annual property appreciation at 5% supports $115,254 by year five. Five-year ROI tracks 92.29% and total cumulative return in cash totals $127,624. Financing can be arranged with Ziffy Mortgage’s DSCR loan, which qualifies using $2,388/mo property income relative to a $2,042/mo payment rather than your personal income (W2, Tax Returns, Paystubs, or 1099).
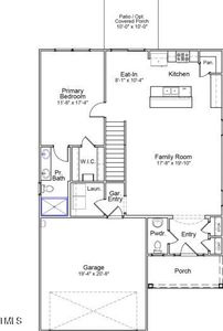
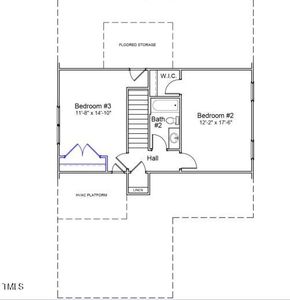
Single Family
Built in 2024
5,227 sqft lot
$N/A/sqft
$75 monthly HOA
Neighborhood Data
Neighborhood data shown for ZIP Code: 27529, Garner, NC area.
Housing Distribution
Housing Statistics
| Category | Value |
|---|---|
| Total HU (Housing Units) | 25,489 (100%) |
| Owner Occupied HU | 17,091 (67.1%) |
| Renter Occupied HU | 7,180 (28.2%) |
| Vacant Housing Units | 1,218 ( 4.8%) |
| Median Home Value | $398,878 |
| Average Home Value | $447,896 |
Housing Distribution
Address Breakdown
Residential
24,113
Single Family
21,389
Multi-Family
2,724
Businesses
2,205
Nearby investment properties with comparable rents
Nearby investment properties with comparable prices



Listed by: Cleresa Keller • Mungo Homes of North Carolina
Mls Name: Doorify MLS
Mls Provider:
Mls ID: #10074840
Disclaimer: Some IDX listings have been excluded from this IDX display. Brokers make an effort to deliver accurate information, but buyers should independently verify any information on which they will rely in a transaction. The listing broker shall not be responsible for any typographical errors, misinformation, or misprints, and they shall be held totally harmless from any damages arising from reliance upon this data. This data is provided exclusively for consumers personal, non-commercial use. Closed (sold) listings may have been listed and/or sold by a real estate firm other than the firm(s) featured on this website. Closed data is not available until the sale of the property is recorded in the MLS. Home sale data is not an appraisal, CMA, competitive or comparative market analysis, or home valuation of any property. Listings marked with a Doorify MLS icon are provided courtesy of the Doorify MLS, of North Carolina, Internet Data Exchange Database. Brokers make an effort to deliver accurate information, but buyers should independently verify any information on which they will rely in a transaction. The listing broker shall not be responsible for any typographical errors, misinformation, or misprints, and they shall be held totally harmless from any damages arising from reliance upon this data. This data is provided exclusively for consumers personal, non-commercial use. Copyright 2025 Doorify MLS of North Carolina. All rights reserved.








