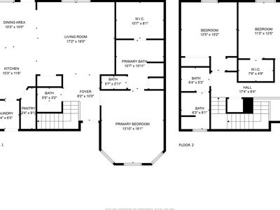
116 Kennedy DrVenusTX76084








Nearby investment properties with comparable rents
Nearby investment properties with comparable prices

Ziffy AI Summary
A quick, investor-focused snapshot highlighting income strength, yield potential.
| Key metrics | Value |
|---|---|
| Price | $399,900 |
| Est. Rent | $3,200/mo |
| ROI | 18% |
- Attractive rent-to-price ratio for income stability
- Good fit for DSCR financing with healthy coverage


Investment Highlights
Investment property for sale in Venus at 116 Kennedy Dr, Venus, TX, 76084 at $275,000 posts ROI 27.44% with $572/mo cash flow from $2,746/mo rent. Total monthly income equals $2,746/mo, and annual cash flow records $6,862/yr on $91,163 to close. Return on cash invested measures 27.44% and rental yield reads 11.98% at the current $275,000. Equity gained on principal adds $1,775/yr, and 5% annual appreciation supports $75,977 by year five. Five-year ROI prints 145.47% and total cumulative return in cash totals $132,611.
You can finance with Ziffy Mortgage’s DSCR loan, which relies on $2,746/mo property income rather than your personal income records (W2s, Paystubs, and Tax returns).
Single Family
Built in 2019
7,013 sqft lot
$N/A/sqft
$360 annually HOA
Neighborhood Data
Neighborhood data shown for ZIP Code: 76084, Venus, TX area.
Housing Distribution
Housing Statistics
| Category | Value |
|---|---|
| Total HU (Housing Units) | 5,458 (100%) |
| Owner Occupied HU | 4,567 (83.7%) |
| Renter Occupied HU | 548 (10.0%) |
| Vacant Housing Units | 343 ( 6.3%) |
| Median Home Value | $329,699 |
| Average Home Value | $357,856 |
Housing Distribution
Address Breakdown
Residential
5,310
Single Family
5,195
Multi-Family
115
Businesses
179
Nearby investment properties with comparable rents
Nearby investment properties with comparable prices



Listed by: Chad Smith • Realty Of America, LLC
Mls Name: NTREIS
Mls ID: #20881746
Disclaimer: IDX information is provided exclusively for personal, non-commercial use, and may not be used for any purpose other than to identify prospective properties consumers may be interested in purchasing. Information is deemed reliable but not guaranteed.







