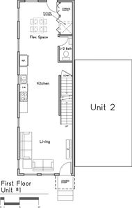
The Big Townie Plan, Ann Arbor Townie HomesAnn ArborMI48103








Nearby investment properties with comparable rents
Nearby investment properties with comparable prices

Ziffy AI Summary
A quick, investor-focused snapshot highlighting income strength, yield potential.
| Key metrics | Value |
|---|---|
| Price | $399,900 |
| Est. Rent | $3,200/mo |
| ROI | 18% |
- Attractive rent-to-price ratio for income stability
- Good fit for DSCR financing with healthy coverage


Investment Highlights
Rental property for sale in Ann Arbor at The Big Townie Plan, Ann Arbor Townie Homes, Ann Arbor, MI, 48103 offers $991/mo rent that, after a $612/mo payment, leaves $167/mo cash flow. Total monthly income is $991/mo, and annual cash flow is $1,998/yr on $41,438 cash. Return on cash invested measures 24.73% in year one, and rental yield stands at 9.51% at a $125,000 entry. Equity gained on principal adds $807/yr while 5% annual appreciation compounds into $34,535 by year five. Five-year ROI records 129.32% and total cumulative return in cash reaches $53,585. Lending can use Ziffy Mortgage’s DSCR loan, which structures approval around $991/mo property income versus a $612/mo payment rather than borrower’s personal income verification through W2s, Salary slips, and Tax returns.
Townhouse
Built in 2025
N/A lot
$N/A/sqft
No HOA
Neighborhood Data
Neighborhood data shown for ZIP Code: 48103, Ann Arbor, MI area.
Housing Distribution
Housing Statistics
| Category | Value |
|---|---|
| Total HU (Housing Units) | 26,175 (100%) |
| Owner Occupied HU | 16,858 (64.4%) |
| Renter Occupied HU | 7,745 (29.6%) |
| Vacant Housing Units | 1,572 ( 6.0%) |
| Median Home Value | $465,693 |
| Average Home Value | $509,229 |
Housing Distribution
Address Breakdown
Residential
25,905
Single Family
22,174
Multi-Family
3,731
Businesses
1,545
Nearby investment properties with comparable rents
Nearby investment properties with comparable prices









