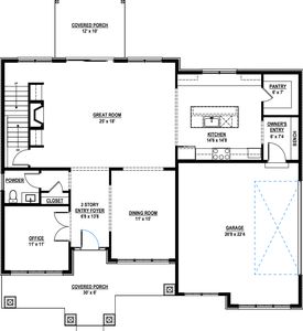
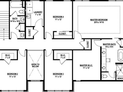
The Ashbury: Build on Your Lot Plan, Montgomery County: Build on Your LotMiddletownOH45042



INVESTMENT ANALYSIS
Investment Verdict
Steady Equity BuilderThe headline number at The Ashbury: Build on Your Lot Plan, Montgomery County: Build on Your Lot, Middletown, OH, 45042 in Middletown is the 1.86 coverage ratio: rent of $4,602/mo versus a $2,469/mo debt payment on a $549,000 property. Rental yield 7.4%. That margin is what gives Ziffy Mortgage's DSCR loan the coverage it needs for a clean, fast approval, no W-2s, no U.S. residency. Appreciation at 5%/yr projects $151,679 by year five, with $5,056/yr in equity from paydown. Total projected cumulative return: $272,833.
| This Property | City Avg | |
|---|---|---|
| Gross Rental Yield | 7.4% | 5.9% |
| Monthly Cash Flow | $(225) | $285 |
City averages based on Middletown market data in our database. Property projections are estimates.
DSCR Loan Qualification
| Monthly Rental Income | $4,602 |
| Total Monthly Debt Service | $3,393 |
| DSCR Ratio | 1.36x |
Ziffy Mortgage: Your DSCR most likely meets our 1.0+ requirement, so you'll most probably qualify for our standard DSCR investment loan program. To pre-qualify, book time with your loan officer →
Estimates assume 6.0% rate / 30-yr fixed, 30% down, 1% tax, 0.5% insurance. Not a commitment to lend.
Single Family
Built in 2025
N/A lot
$N/A/sqft
No HOA
Neighborhood Data
Neighborhood data shown for ZIP Code: 45042, Middletown, OH area.
Housing Distribution
Housing Statistics
| Category | Value |
|---|---|
| Total HU (Housing Units) | 12,368 (100%) |
| Owner Occupied HU | 7,981 (64.5%) |
| Renter Occupied HU | 3,489 (28.2%) |
| Vacant Housing Units | 898 ( 7.3%) |
| Median Home Value | $267,557 |
| Average Home Value | $303,928 |
Housing Distribution
Address Breakdown
Residential
11,724
Single Family
10,548
Multi-Family
1,176
Businesses
665



Nearby investment properties with comparable rents
Nearby investment properties with comparable prices

Ziffy AI Summary
A quick, investor-focused snapshot highlighting income strength, yield potential.
| Key metrics | Value |
|---|---|
| Price | $399,900 |
| Est. Rent | $3,200/mo |
| ROI | 18% |
- Attractive rent-to-price ratio for income stability
- Good fit for DSCR financing with healthy coverage


Single Family
Built in 2025
N/A lot
$N/A/sqft
No HOA
Neighborhood Data
Neighborhood data shown for ZIP Code: 45042, Middletown, OH area.
Housing Distribution
Housing Statistics
| Category | Value |
|---|---|
| Total HU (Housing Units) | 12,368 (100%) |
| Owner Occupied HU | 7,981 (64.5%) |
| Renter Occupied HU | 3,489 (28.2%) |
| Vacant Housing Units | 898 ( 7.3%) |
| Median Home Value | $267,557 |
| Average Home Value | $303,928 |
Housing Distribution
Address Breakdown
Residential
11,724
Single Family
10,548
Multi-Family
1,176
Businesses
665
Nearby investment properties with comparable rents
Nearby investment properties with comparable prices



Listed by: N/A • Brandon Homes
Mls Name: Brandon Homes
Mls ID: #N/A








