The 1613 Plan, Three CreeksBeltonTX76513








Nearby investment properties with comparable rents
Nearby investment properties with comparable prices

Ziffy AI Summary
A quick, investor-focused snapshot highlighting income strength, yield potential.
| Key metrics | Value |
|---|---|
| Price | $399,900 |
| Est. Rent | $3,200/mo |
| ROI | 18% |
- Attractive rent-to-price ratio for income stability
- Good fit for DSCR financing with healthy coverage


Investment Highlights
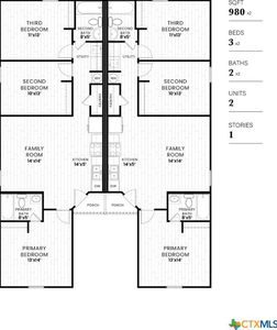
Rental property for sale in Belton at The 1613 Plan, Three Creeks, Belton, TX, 76513 offers $2,380/mo rent that, after a $1,478/mo payment, leaves $233/mo cash flow. Total monthly income is $2,380/mo, and annual cash flow is $2,793/yr on $100,080 cash. Return on cash invested measures 22.7% in year one, and rental yield stands at 9.46% at a $301,900 entry. Equity gained on principal adds $1,948/yr while 5% annual appreciation compounds into $83,409 by year five. Five-year ROI records 119.03% and total cumulative return in cash reaches $119,120. Lending can use Ziffy Mortgage’s DSCR loan, which structures approval around $2,380/mo property income versus a $1,478/mo payment rather than borrower’s personal income verification through W2s, Salary slips, and Tax returns.
Single Family
Built in 2026
N/A lot
$N/A/sqft
No HOA
Neighborhood Data
Neighborhood data shown for ZIP Code: 76513, Belton, TX area.
Housing Distribution
Housing Statistics
| Category | Value |
|---|---|
| Total HU (Housing Units) | 18,497 (100%) |
| Owner Occupied HU | 12,076 (65.3%) |
| Renter Occupied HU | 5,158 (27.9%) |
| Vacant Housing Units | 1,263 ( 6.8%) |
| Median Home Value | $336,211 |
| Average Home Value | $377,275 |
Housing Distribution
Address Breakdown
Residential
18,034
Single Family
15,946
Multi-Family
2,088
Businesses
1,278
Nearby investment properties with comparable rents
Nearby investment properties with comparable prices












