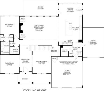
Peterson with Basement Plan, Jason's WalkCummingGA30028







Nearby investment properties with comparable rents
Nearby investment properties with comparable prices

Ziffy AI Summary
A quick, investor-focused snapshot highlighting income strength, yield potential.
| Key metrics | Value |
|---|---|
| Price | $399,900 |
| Est. Rent | $3,200/mo |
| ROI | 18% |
- Attractive rent-to-price ratio for income stability
- Good fit for DSCR financing with healthy coverage


Investment Highlights
Rental property for sale in Cumming at Peterson with Basement Plan, Jason's Walk, Cumming, GA, 30028 offers $4,452/mo rent that, after a $5,090/mo payment. Total monthly income is $4,452/mo. Return on cash invested measures 13.68% in year one, and rental yield stands at 5.14% at a $1,039,995 entry. Equity gained on principal adds $6,711/yr while 5% annual appreciation compounds into $287,331 by year five. Five-year ROI records 69.23% and total cumulative return in cash reaches $233,264. Lending can use Ziffy Mortgage’s DSCR loan, which structures approval around $4,452/mo property income versus a $5,090/mo payment rather than borrower’s personal income verification through W2s, Salary slips, and Tax returns.
Single Family
Built in 2026
N/A lot
$N/A/sqft
No HOA
Nearby investment properties with comparable rents
Nearby investment properties with comparable prices












