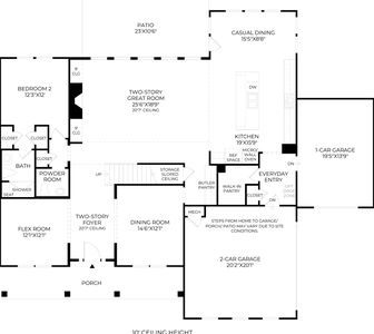
Payton Plan, CrossCreek by Toll BrothersCummingGA30040








Nearby investment properties with comparable rents
Nearby investment properties with comparable prices

Ziffy AI Summary
A quick, investor-focused snapshot highlighting income strength, yield potential.
| Key metrics | Value |
|---|---|
| Price | $399,900 |
| Est. Rent | $3,200/mo |
| ROI | 18% |
- Attractive rent-to-price ratio for income stability
- Good fit for DSCR financing with healthy coverage


Investment Highlights
Investment property for sale in Cumming at Payton Plan, CrossCreek by Toll Brothers, Cumming, GA, 30040 at $1,176,995 posts ROI 12.42% with from $4,636/mo rent. Total monthly income equals $4,636/mo. Return on cash invested measures 12.42% and rental yield reads 4.73% at the current $1,176,995. Equity gained on principal adds $7,595/yr, and 5% annual appreciation supports $325,182 by year five. Five-year ROI prints 62.43% and total cumulative return in cash totals $238,069. You can finance with Ziffy Mortgage’s DSCR loan, which relies on $4,636/mo property income rather than your personal income records (W2s, Paystubs, and Tax returns).
Single Family
Built in 2024
N/A lot
$N/A/sqft
No HOA
Neighborhood Data
Neighborhood data shown for ZIP Code: 30040, Cumming, GA area.
Housing Distribution
Housing Statistics
| Category | Value |
|---|---|
| Total HU (Housing Units) | 31,006 (100%) |
| Owner Occupied HU | 25,096 (80.9%) |
| Renter Occupied HU | 5,244 (16.9%) |
| Vacant Housing Units | 666 ( 2.1%) |
| Median Home Value | $582,767 |
| Average Home Value | $609,119 |
Housing Distribution
Address Breakdown
Residential
30,239
Single Family
28,686
Multi-Family
1,553
Businesses
2,042
Nearby investment properties with comparable rents
Nearby investment properties with comparable prices












