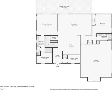
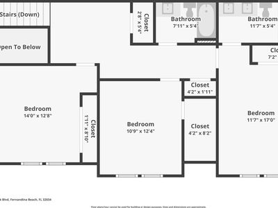
85084 Southern Creek BlvdFernandina BeachFL32034



INVESTMENT ANALYSIS
Investment Verdict
Income-ProducingReliable and efficiently structured, 85084 Southern Creek Blvd, Fernandina Beach, FL, 32034 in Fernandina Beach is a conservative rental investment at $576,400. Rental yield 6.53%. A 1.21 coverage ratio meets Ziffy Mortgage's DSCR standard for foreign-national financing. Five-year equity: 5% appreciation adds $159,249; $5,309/yr in principal paydown supplements. Total projected return: $169,379.
| This Property | City Avg | |
|---|---|---|
| Gross Rental Yield | 6.5% | 6.0% |
| Monthly Cash Flow | $(789) | $200 |
City averages based on Fernandina Beach market data in our database. Property projections are estimates.
DSCR Loan Qualification
| Monthly Rental Income | $3,136 |
| Total Monthly Debt Service | $3,696 |
| DSCR Ratio | 0.85x |
Ziffy Mortgage typically prefers a DSCR of 1.0+, but in some cases you may qualify with a DSCR below 1. To explore if this deal qualifies for an investment mortgage, book time with your loan officer →
Estimates assume 6.0% rate / 30-yr fixed, 30% down, 1% tax, 0.5% insurance. Not a commitment to lend.
Single Family
Built in 2026
0.50 Acres lot
$N/A/sqft
$100 monthly HOA
Neighborhood Data
Neighborhood data shown for ZIP Code: 32034, Fernandina Beach, FL area.
Housing Distribution
Housing Statistics
| Category | Value |
|---|---|
| Total HU (Housing Units) | 23,682 (100%) |
| Owner Occupied HU | 15,551 (65.7%) |
| Renter Occupied HU | 3,710 (15.7%) |
| Vacant Housing Units | 4,421 (18.7%) |
| Median Home Value | $586,648 |
| Average Home Value | $675,813 |
Housing Distribution
Address Breakdown
Residential
21,050
Single Family
18,551
Multi-Family
2,499
Businesses
1,193



Nearby investment properties with comparable rents
Nearby investment properties with comparable prices

Ziffy AI Summary
A quick, investor-focused snapshot highlighting income strength, yield potential.
| Key metrics | Value |
|---|---|
| Price | $399,900 |
| Est. Rent | $3,200/mo |
| ROI | 18% |
- Attractive rent-to-price ratio for income stability
- Good fit for DSCR financing with healthy coverage


Single Family
Built in 2026
0.50 Acres lot
$N/A/sqft
$100 monthly HOA
Neighborhood Data
Neighborhood data shown for ZIP Code: 32034, Fernandina Beach, FL area.
Housing Distribution
Housing Statistics
| Category | Value |
|---|---|
| Total HU (Housing Units) | 23,682 (100%) |
| Owner Occupied HU | 15,551 (65.7%) |
| Renter Occupied HU | 3,710 (15.7%) |
| Vacant Housing Units | 4,421 (18.7%) |
| Median Home Value | $586,648 |
| Average Home Value | $675,813 |
Housing Distribution
Address Breakdown
Residential
21,050
Single Family
18,551
Multi-Family
2,499
Businesses
1,193
Nearby investment properties with comparable rents
Nearby investment properties with comparable prices



Listed by: Erin King • COLDWELL BANKER VANGUARD REALTY
Mls Name: AINCAR
Mls Provider:
Mls ID: #115094
Disclaimer: IDX information is provided exclusively for personal, non-commercial use, and may not be used for any purpose other than to identify prospective properties consumers may be interested in purchasing. Information is deemed reliable but not guaranteed.








