8135 Briar Ridge LnCitrus HeightsCA95610






Nearby investment properties with comparable rents
Nearby investment properties with comparable prices

Ziffy AI Summary
A quick, investor-focused snapshot highlighting income strength, yield potential.
| Key metrics | Value |
|---|---|
| Price | $399,900 |
| Est. Rent | $3,200/mo |
| ROI | 18% |
- Attractive rent-to-price ratio for income stability
- Good fit for DSCR financing with healthy coverage


Investment Highlights
Rental property for sale in Citrus Heights at 8135 Briar Ridge Ln, Citrus Heights, CA, 95610 generates $2,594/mo in rent and, after a $1,713/mo payment, leaves $32/mo in cash flow. Total monthly income is $2,594/mo, and annual cash flow is $380/yr on $116,025 invested. Return on cash invested sits at 20.24% in year one, and rental yield is 8.89% on a $350,000 entry. Equity gained on principal adds $2,258/yr, while 5% annual appreciation builds toward $96,699 over five years. Five-year ROI reaches 106.1% and total cumulative return in cash sums $123,098. For financing, investors can use Ziffy Mortgage’s DSCR loan, which considers $2,594/mo property income rather than buyer’s personal income.
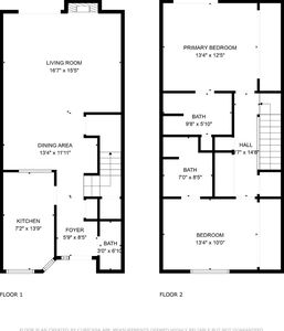
Townhouse
Built in 1985
1,390 sqft lot
$N/A/sqft
$315 monthly HOA
Neighborhood Data
Neighborhood data shown for ZIP Code: 95610, Citrus Heights, CA area.
Housing Distribution
Housing Statistics
| Category | Value |
|---|---|
| Total HU (Housing Units) | 18,765 (100%) |
| Owner Occupied HU | 9,405 (50.1%) |
| Renter Occupied HU | 8,579 (45.7%) |
| Vacant Housing Units | 781 ( 4.2%) |
| Median Home Value | $540,894 |
| Average Home Value | $571,136 |
Housing Distribution
Address Breakdown
Residential
18,601
Single Family
14,820
Multi-Family
3,781
Businesses
1,044
Nearby investment properties with comparable rents
Nearby investment properties with comparable prices



Listed by: Dana Louis • HomeSmart ICARE Realty
Mls Name: MetroList Services of CA
Mls Provider:
Mls ID: #225067694
Disclaimer: Every person who intends to view or use such MLS information agrees to Terms of Use that include the following terms and conditions:All measurements and all calculations of area (i.e., Sq Ft and Acreage) are approximate. Broker has represented to MetroList that Broker has a valid listing signed by seller authorizing placement in the MLS. Above information is provided by Seller and/or other sources and has not been verified by Broker. Copyright 2025 MetroList Services, Inc. Information being provided by Metrolist Services, Inc. is for consumers' personal, non-commercial use and may not be used for any purpose other than to identify prospective properties consumers may be interested in purchasing. [Click here for more information](/mls-disclaimers/#16)








