4445 Verbena StMidlothianTX76065






Nearby investment properties with comparable rents
Nearby investment properties with comparable prices

Ziffy AI Summary
A quick, investor-focused snapshot highlighting income strength, yield potential.
| Key metrics | Value |
|---|---|
| Price | $399,900 |
| Est. Rent | $3,200/mo |
| ROI | 18% |
- Attractive rent-to-price ratio for income stability
- Good fit for DSCR financing with healthy coverage


Investment Highlights
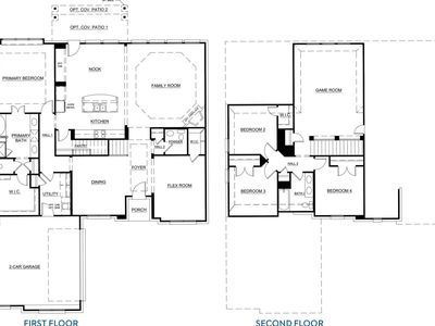
Rental property for sale in Midlothian at 4445 Verbena St, Midlothian, TX, 76065 priced at $519,999 converts $3,092/mo rent into after a $2,545/mo obligation. Total monthly income equals $3,092/mo. Return on cash invested prints 15.55% in year one, and rental yield reads 7.14% against a $519,999 entry. Equity gained on principal adds $3,355/yr, while 5% annual appreciation compiles into $143,666 by year five. Five-year ROI reaches 80.73% and total cumulative return in cash sums $138,119. For leverage, Ziffy Mortgage’s DSCR loan bases approval on $3,092/mo property income covering a $2,545/mo payment, not borrower’s personal income.
Single Family
Built in 2025
9,147 sqft lot
$N/A/sqft
$450 annually HOA
Neighborhood Data
Neighborhood data shown for ZIP Code: 76065, Midlothian, TX area.
Housing Distribution
Housing Statistics
| Category | Value |
|---|---|
| Total HU (Housing Units) | 19,220 (100%) |
| Owner Occupied HU | 15,180 (79.0%) |
| Renter Occupied HU | 3,250 (16.9%) |
| Vacant Housing Units | 790 ( 4.1%) |
| Median Home Value | $430,364 |
| Average Home Value | $474,199 |
Housing Distribution
Address Breakdown
Residential
17,533
Single Family
16,402
Multi-Family
1,131
Businesses
1,208
Nearby investment properties with comparable rents
Nearby investment properties with comparable prices



Listed by: Ben Caballero • HomesUSA.com
Mls Name: NTREIS
Mls ID: #21004282
Disclaimer: IDX information is provided exclusively for personal, non-commercial use, and may not be used for any purpose other than to identify prospective properties consumers may be interested in purchasing. Information is deemed reliable but not guaranteed.








