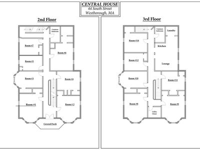
44 South StWestboroughMA01581








Nearby investment properties with comparable rents
Nearby investment properties with comparable prices

Ziffy AI Summary
A quick, investor-focused snapshot highlighting income strength, yield potential.
| Key metrics | Value |
|---|---|
| Price | $399,900 |
| Est. Rent | $3,200/mo |
| ROI | 18% |
- Attractive rent-to-price ratio for income stability
- Good fit for DSCR financing with healthy coverage


Investment Highlights
Investment property for sale in Westborough at 44 South St, Westborough, MA, 01581 offers a 1.51% rental yield on a $1,485,000 purchase with $1,867/mo rent. 68% in year one. Equity gained on principal adds $9,582/yr while 5% annual appreciation supports $410,278 over five years. Portfolio math shows five-year ROI at 5.16% and total cumulative return in cash at $24,822. Financing is available via Ziffy Mortgage’s DSCR loan, which evaluates $1,867/mo property income against a $7,268/mo payment rather than investor’s personal income documents like W2s, Salary slips, and Tax returns.
Multi Family
Built in 1912
5,188 sqft lot
$N/A/sqft
No HOA
Neighborhood Data
Neighborhood data shown for ZIP Code: 01581, Westborough, MA area.
Housing Distribution
Housing Statistics
| Category | Value |
|---|---|
| Total HU (Housing Units) | 8,716 (100%) |
| Owner Occupied HU | 5,117 (58.7%) |
| Renter Occupied HU | 3,209 (36.8%) |
| Vacant Housing Units | 390 ( 4.5%) |
| Median Home Value | $676,794 |
| Average Home Value | $717,525 |
Housing Distribution
Address Breakdown
Residential
8,381
Single Family
5,962
Multi-Family
2,419
Businesses
1,262
Nearby investment properties with comparable rents
Nearby investment properties with comparable prices



Listed by: Nilton Lisboa • Lisboa Realty
Mls Name: MLS PIN
Mls ID: #73464464








