








A quick, investor-focused snapshot highlighting income strength, yield potential.
| Key metrics | Value |
|---|---|
| Price | $399,900 |
| Est. Rent | $3,200/mo |
| ROI | 18% |


Investment property for sale in Spring Hill at 4022 Rampart Way LOT 141, Spring Hill, TN, 37174 earns $1,323/mo cash flow from $4,705/mo rent with a $2,765/mo payment. Total monthly income totals $4,705/mo, and annual cash flow totals $15,879/yr on $185,882 capital. ROI tracks 28.6% on current figures, and rental yield reads 9.99% at a $564,990 purchase. Equity gained on principal adds $3,646/yr, and 5% annual appreciation supports $156,096 over five years. Five-year ROI reaches 149.18% and total cumulative return in cash sums $277,296. Financing can be set up with Ziffy Mortgage’s DSCR loan, which is driven by $4,705/mo property income instead of your personal income.
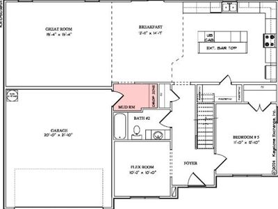
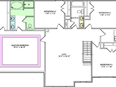
Single Family
Built in 2025
8,712 sqft lot
$N/A/sqft
No HOA
Neighborhood data shown for ZIP Code: 37174, Spring Hill, TN area.
| Category | Value |
|---|---|
| Total HU (Housing Units) | 22,891 (100%) |
| Owner Occupied HU | 15,848 (69.2%) |
| Renter Occupied HU | 5,796 (25.3%) |
| Vacant Housing Units | 1,247 ( 5.4%) |
| Median Home Value | $483,063 |
| Average Home Value | $543,971 |
Residential
21,511
Single Family
19,937
Multi-Family
1,574
Businesses
1,139
Date | Event | Price |
|---|---|---|
| No price history data available | ||
Date | Tax Paid | Tax Increase Rate | Value | Value Increase Rate |
|---|---|---|---|---|
| No tax history data available | ||||



Listed by: Hannah Goethel • Reliant Realty ERA Powered
Mls Name: RealTracs MLS as distributed by MLS GRID
Mls ID: #3061170