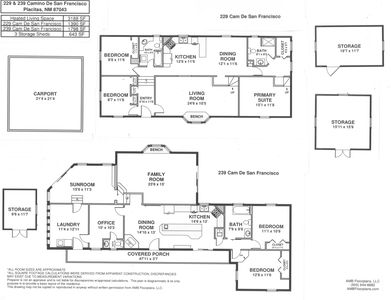
239 & 229 Camino De San FranciscoPlacitasNM87043








Nearby investment properties with comparable rents
Nearby investment properties with comparable prices

Ziffy AI Summary
A quick, investor-focused snapshot highlighting income strength, yield potential.
| Key metrics | Value |
|---|---|
| Price | $399,900 |
| Est. Rent | $3,200/mo |
| ROI | 18% |
- Attractive rent-to-price ratio for income stability
- Good fit for DSCR financing with healthy coverage


Investment Highlights
Investment property for sale in Placitas at 239 & 229 Camino De San Francisco, Placitas, NM, 87043 uses $91,163 cash to close to unlock $3,131/yr annual cash flow and $261/mo monthly cash flow. Total monthly income runs $1,875/mo, and a $1,346/mo payment keeps the spread at $261/mo. Purchase price stands at $275,000, and rental yield measures 8.18% with $1,875/mo rent. Return on cash invested shows 23.34% in year one, and 5% annual appreciation builds toward $75,977 over five years. Five-year ROI reaches 120.85% and total cumulative return in cash records $110,171. Financing may use Ziffy Mortgage’s DSCR loan, which bases approval on $1,875/mo property income covering a $1,346/mo payment rather than investor’s personal income.
Manufactured
Built in 1982
3.19 Acres lot
$N/A/sqft
No HOA
Neighborhood Data
Neighborhood data shown for ZIP Code: 87043, Placitas, NM area.
Housing Distribution
Housing Statistics
| Category | Value |
|---|---|
| Total HU (Housing Units) | 2,769 (100%) |
| Owner Occupied HU | 2,367 (85.5%) |
| Renter Occupied HU | 200 ( 7.2%) |
| Vacant Housing Units | 202 ( 7.3%) |
| Median Home Value | $514,190 |
| Average Home Value | $559,205 |
Housing Distribution
Address Breakdown
Residential
2,413
Single Family
2,413
Multi-Family
0
Businesses
135
Nearby investment properties with comparable rents
Nearby investment properties with comparable prices



Listed by: David Harper • Placitas Realty Inc.
Mls Name: SWMLS
Mls ID: #1096601








