1533 Riverside DrNashvilleTN37206








Nearby investment properties with comparable rents
Nearby investment properties with comparable prices

Ziffy AI Summary
A quick, investor-focused snapshot highlighting income strength, yield potential.
| Key metrics | Value |
|---|---|
| Price | $399,900 |
| Est. Rent | $3,200/mo |
| ROI | 18% |
- Attractive rent-to-price ratio for income stability
- Good fit for DSCR financing with healthy coverage


Investment Highlights
Rental property for sale in Nashville at 1533 Riverside Dr, Nashville, TN, 37206 offers $3,227/mo rent that, after a $3,304/mo payment. Total monthly income is $3,227/mo. Return on cash invested measures 14.53% in year one, and rental yield stands at 5.74% at a $675,000 entry. Equity gained on principal adds $4,356/yr while 5% annual appreciation compounds into $186,490 by year five. Five-year ROI records 74.11% and total cumulative return in cash reaches $164,583. Lending can use Ziffy Mortgage’s DSCR loan, which structures approval around $3,227/mo property income versus a $3,304/mo payment rather than borrower’s personal income verification through W2s, Salary slips, and Tax returns.
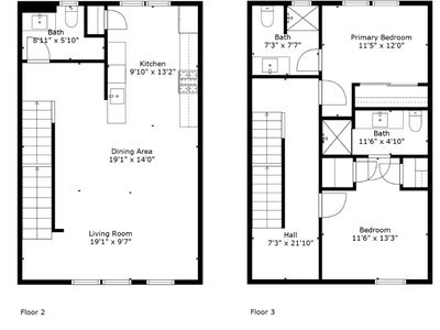
Townhouse
Built in 2021
435.60 sqft lot
$N/A/sqft
$210 monthly HOA
Neighborhood Data
Neighborhood data shown for ZIP Code: 37206, Nashville, TN area.
Housing Distribution
Housing Statistics
| Category | Value |
|---|---|
| Total HU (Housing Units) | 14,502 (100%) |
| Owner Occupied HU | 6,329 (43.6%) |
| Renter Occupied HU | 6,132 (42.3%) |
| Vacant Housing Units | 2,041 (14.1%) |
| Median Home Value | $597,260 |
| Average Home Value | $651,554 |
Housing Distribution
Address Breakdown
Residential
13,890
Single Family
11,532
Multi-Family
2,358
Businesses
887
Nearby investment properties with comparable rents
Nearby investment properties with comparable prices



Listed by: Wendy Monday • Onward Real Estate
Mls Name: RealTracs MLS as distributed by MLS GRID
Mls Provider:
Mls ID: #2819891
Disclaimer: Based on information submitted to the MLS GRID as of 2025-04-20 07:52:54 PDT. All data is obtained from various sources and may not have been verified by broker or MLS GRID. Supplied Open House Information is subject to change without notice. All information should be independently reviewed and verified for accuracy. Properties may or may not be listed by the office/agent presenting the information. Some IDX listings have been excluded from this website. [Click here for more information](/mls-disclaimers/#99)








