1511 Saddle VwMount JulietTN37122








Nearby investment properties with comparable rents
Nearby investment properties with comparable prices

Ziffy AI Summary
A quick, investor-focused snapshot highlighting income strength, yield potential.
| Key metrics | Value |
|---|---|
| Price | $399,900 |
| Est. Rent | $3,200/mo |
| ROI | 18% |
- Attractive rent-to-price ratio for income stability
- Good fit for DSCR financing with healthy coverage


Investment Highlights
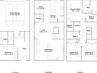
Investment property for sale in Mount Juliet at 1511 Saddle Vw, Mount Juliet, TN, 37122 earns from $2,821/mo rent with a $2,496/mo payment. Total monthly income totals $2,821/mo. ROI tracks 18.4% on current figures, and rental yield reads 6.64% at a $510,000 purchase. Equity gained on principal adds $3,291/yr, and 5% annual appreciation supports $140,904 over five years. Five-year ROI reaches 94.48% and total cumulative return in cash sums $158,535. Financing can be set up with Ziffy Mortgage’s DSCR loan, which is driven by $2,821/mo property income instead of your personal income.
Single Family
Built in 2007
10,454 sqft lot
$N/A/sqft
No HOA
Neighborhood Data
Neighborhood data shown for ZIP Code: 37122, Mount Juliet, TN area.
Housing Distribution
Housing Statistics
| Category | Value |
|---|---|
| Total HU (Housing Units) | 27,975 (100%) |
| Owner Occupied HU | 21,001 (75.1%) |
| Renter Occupied HU | 5,885 (21.0%) |
| Vacant Housing Units | 1,089 ( 3.9%) |
| Median Home Value | $483,144 |
| Average Home Value | $527,082 |
Housing Distribution
Address Breakdown
Residential
27,302
Single Family
25,895
Multi-Family
1,407
Businesses
1,252
Nearby investment properties with comparable rents
Nearby investment properties with comparable prices



Listed by: Melissa Parmer • Benchmark Realty, LLC
Mls Name: RealTracs MLS as distributed by MLS GRID
Mls ID: #3012125








