








A quick, investor-focused snapshot highlighting income strength, yield potential.
| Key metrics | Value |
|---|---|
| Price | $399,900 |
| Est. Rent | $3,200/mo |
| ROI | 18% |


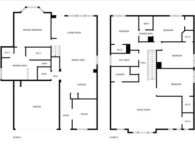
Investment property for sale in Austin at 15 Stone Terrace Dr, Austin, TX, 78734 offers a 7.81% rental yield on a $635,000 purchase with $4,135/mo rent. 87% in year one. Equity gained on principal adds $4,098/yr while 5% annual appreciation supports $175,439 over five years. Portfolio math shows five-year ROI at 93.13% and total cumulative return in cash at $194,564. Financing is available via Ziffy Mortgage’s DSCR loan, which evaluates $4,135/mo property income against a $3,108/mo payment rather than investor’s personal income documents like W2s, Salary slips, and Tax returns.
Condo
Built in 2010
0.28 Acres lot
$N/A/sqft
No HOA
Neighborhood data shown for ZIP Code: 78734, Austin, TX area.
| Category | Value |
|---|---|
| Total HU (Housing Units) | 10,565 (100%) |
| Owner Occupied HU | 7,586 (71.8%) |
| Renter Occupied HU | 1,989 (18.8%) |
| Vacant Housing Units | 990 ( 9.4%) |
| Median Home Value | $770,107 |
| Average Home Value | $947,171 |
Residential
10,698
Single Family
9,927
Multi-Family
771
Businesses
1,419
Date | Event | Price |
|---|---|---|
| No price history data available | ||
Date | Tax Paid | Tax Increase Rate | Value | Value Increase Rate |
|---|---|---|---|---|
| No tax history data available | ||||



Listed by: Flor Llaudet Aguero • Team Price Real Estate
Mls Name: Unlock MLS
Mls ID: #2792968