








A quick, investor-focused snapshot highlighting income strength, yield potential.
| Key metrics | Value |
|---|---|
| Price | $399,900 |
| Est. Rent | $3,200/mo |
| ROI | 18% |


Investment property for sale in Houston at 8114 Parker Rd, Houston, TX, 77078 earns from $2,347/mo rent with a $1,923/mo payment. Total monthly income totals $2,347/mo. ROI tracks 15.79% on current figures, and rental yield reads 7.17% at a $392,990 purchase. Equity gained on principal adds $2,536/yr, and 5% annual appreciation supports $108,576 over five years. Five-year ROI reaches 81.95% and total cumulative return in cash sums $106,763. Financing can be set up with Ziffy Mortgage’s DSCR loan, which is driven by $2,347/mo property income instead of your personal income.
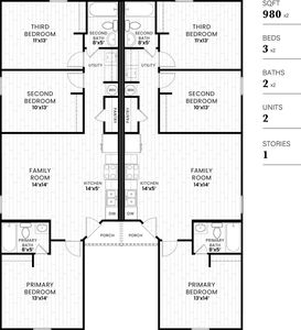
Multi Family
Built in N/A
8,125 sqft lot
$N/A/sqft
No HOA
Neighborhood data shown for ZIP Code: 77078, Houston, TX area.
| Category | Value |
|---|---|
| Total HU (Housing Units) | 5,024 (100%) |
| Owner Occupied HU | 2,599 (51.7%) |
| Renter Occupied HU | 1,999 (39.8%) |
| Vacant Housing Units | 426 ( 8.5%) |
| Median Home Value | $151,491 |
| Average Home Value | $158,527 |
Residential
4,975
Single Family
4,184
Multi-Family
791
Businesses
115
Date | Event | Price |
|---|---|---|
| 2024-02-21 | Listed for sale | $392,990 |
| 2005-03-04 | Sold | N/A |
Date | Tax Paid | Tax Increase Rate | Value | Value Increase Rate |
|---|---|---|---|---|
| 2024-12-27 | N/A | N/A | $330,545 | 563.90% |
| 2023-12-27 | $1003.13 | 22.00% | $49,788 | 33.33% |
| 2022-12-27 | $822.21 | N/A | $37,341 | 50.00% |



Listed by: Aaron Jistel • Listing Spark
Mls Name: HAR
Mls Provider:
Mls ID: #65277203
Disclaimer: Copyright 2024, Houston REALTORS Information Service, Inc. The information provided is exclusively for consumers personal, non-commercial use, and may not be used for any purpose other than to identify prospective properties consumers may be interested in purchasing. Information is deemed reliable but not guaranteed.