








A quick, investor-focused snapshot highlighting income strength, yield potential.
| Key metrics | Value |
|---|---|
| Price | $399,900 |
| Est. Rent | $3,200/mo |
| ROI | 18% |


Rental property for sale in Rochester at 24 Birdie Grove #A, Rochester, NH, 03839 priced at $439,900 converts $3,354/mo rent into $178/mo cash flow after a $2,153/mo obligation. Total monthly income equals $3,354/mo, and annual cash flow totals $2,130/yr on $145,827 invested. Return on cash invested prints 21.37% in year one, and rental yield reads 9.15% against a $439,900 entry. Equity gained on principal adds $2,839/yr, while 5% annual appreciation compiles into $121,536 by year five. Five-year ROI reaches 112.04% and total cumulative return in cash sums $163,383. For leverage, Ziffy Mortgage’s DSCR loan bases approval on $3,354/mo property income covering a $2,153/mo payment, not borrower’s personal income.
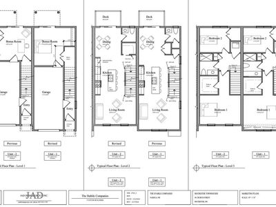
Townhouse
Built in 2025
3.78 Acres lot
$N/A/sqft
$228 monthly HOA
Neighborhood data shown for ZIP Code: 03839, Rochester, NH area.
| Category | Value |
|---|---|
| Total HU (Housing Units) | 1,828 (100%) |
| Owner Occupied HU | 1,190 (65.1%) |
| Renter Occupied HU | 554 (30.3%) |
| Vacant Housing Units | 84 ( 4.6%) |
| Median Home Value | $399,634 |
| Average Home Value | $371,317 |
Residential
1,853
Single Family
1,547
Multi-Family
306
Businesses
123
Date | Event | Price |
|---|---|---|
| 2025-05-30 | Listed for sale | $439,900 |
Date | Tax Paid | Tax Increase Rate | Value | Value Increase Rate |
|---|---|---|---|---|
| No tax history data available | ||||



Listed by: Peggy Carter • Coldwell Banker - Peggy Carter Team
Mls Name: PrimeMLS
Mls Provider:
Mls ID: #5043747
Disclaimer: Copyright 2025 PrimeMLS, Inc. All rights reserved. This information is deemed reliable, but not guaranteed. The data relating to real estate displayed on this display comes in part from the IDX Program of PrimeMLS. The information being provided is for consumers personal, non-commercial use and may not be used for any purpose other than to identify prospective properties consumers may be interested in purchasing. Data last updated 2025-06-10 14:16:51 PDT. This display of listings may or may not be the entire Compilation from the PrimeMLS database, and PrimeMLS does not guarantee the accuracy of such information.