








A quick, investor-focused snapshot highlighting income strength, yield potential.
| Key metrics | Value |
|---|---|
| Price | $399,900 |
| Est. Rent | $3,200/mo |
| ROI | 18% |


Rental property for sale in Justin at 11213 Canopy Trl, Justin, TX, 76247 generates $3,088/mo in rent, after a $3,316/mo payment. Total monthly income is $3,088/mo. Return on cash invested sits at 8.98% in year one, and rental yield is 5.47% on a $677,415 entry. Equity gained on principal adds $4,371/yr, while 5% annual appreciation builds toward $187,157 over five years. Five-year ROI reaches 46.05% and total cumulative return in cash sums $102,641. For financing, investors can use Ziffy Mortgage’s DSCR loan, which considers $3,088/mo property income rather than buyer’s personal income.
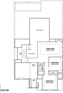
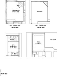
Single Family
Built in 2025
8,585 sqft lot
$N/A/sqft
$1,975 semi-annually HOA
Neighborhood data shown for ZIP Code: 76247, Justin, TX area.
| Category | Value |
|---|---|
| Total HU (Housing Units) | 12,121 (100%) |
| Owner Occupied HU | 9,700 (80.0%) |
| Renter Occupied HU | 1,582 (13.1%) |
| Vacant Housing Units | 839 ( 6.9%) |
| Median Home Value | $438,515 |
| Average Home Value | $491,845 |
Residential
10,759
Single Family
10,453
Multi-Family
306
Businesses
404
Date | Event | Price |
|---|---|---|
| 2025-04-15 | Price change | $677,415 |
| 2025-04-04 | Price change | $677,255 |
| 2025-02-21 | Listed for sale | $708,255 |
Date | Tax Paid | Tax Increase Rate | Value | Value Increase Rate |
|---|---|---|---|---|
| No tax history data available | ||||



Listed by: Eric Stanley • American Legend Homes
Mls Name: NTREIS
Mls ID: #20904473
Disclaimer: IDX information is provided exclusively for personal, non-commercial use, and may not be used for any purpose other than to identify prospective properties consumers may be interested in purchasing. Information is deemed reliable but not guaranteed.